Search

Leave a Message

Thank you for your message. We will be in touch with you shortly.

Explore Our Properties

Property Description

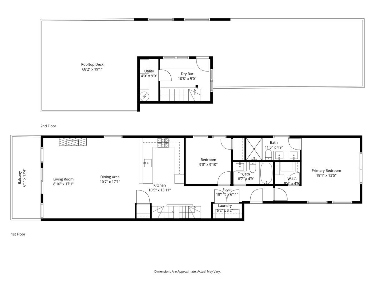
Penthouse living at its finest in the heart of Lincoln Park. This exceptional 2-bedroom, 2-bath residence offers seamless indoor-outdoor living, highlighted by an expansive 1,300 sq. ft. private rooftop deck spanning the full footprint of the home. Thoughtfully designed with Trex decking, a pergola, fire pit, and water line, it creates the perfect setting for both elevated entertaining and everyday enjoyment. Accessible only through this residence, the rooftop offers an added level of privacy and security. Inside, a beautifully appointed chef's kitchen showcases Wolf, Sub-Zero, and Bosch appliances, sleek white quartz countertops, and a generous peninsula with breakfast bar seating, flowing effortlessly into a dedicated dining area. The bright and inviting living room is anchored by a quartz-surround fireplace, built-in speakers throughout the living room and kitchen, and opens to a private front balcony-ideal for indoor-outdoor living. The primary suite is a true retreat, featuring a walk-in closet and a spa-caliber bath complete with heated marble floors, dual vanity, and a steam shower. A well-proportioned second bedroom and an additional full bath complete the main level. An upper interior level offers a versatile den or lounge space with a built-in dry bar, seamlessly connecting to the rooftop deck-perfect for entertaining or relaxing above the city. Additional highlights include a thoughtfully designed laundry area with exceptional storage and a dedicated folding counter-an uncommon and highly functional feature-along with side-by-side laundry, all-brick construction, and garage parking (which is EV-ready!). Set within an intimate, boutique 3-unit building, this home is ideally located just a short walk to the Diversey Brown/Purple Line and Fullerton station. Enjoy close proximity to Jonquil Park, Fresh Market, Equinox, and the best of Halsted and Lincoln Avenue dining, shopping, and neighborhood amenities.

Overview

Property Status
Active Under Contract
MLS ID
12618298
Property Type
Condo
Year Built
2015

Features & Amenities

Neighborhood
Lincoln Park
Stories
3
Garage Spaces
1.0
Water Source
Lake Michigan
Parking
Yes, Garage Owned, Detached, Garage
Heat Type
Natural Gas, Forced Air, Radiant Floor
Air Conditioning
Central Air
Laundry Room
Main Level, Washer Hookup, In Unit
Fireplace
Gas Log, Gas Starter
Appliances
Range, Microwave, Dishwasher, High End Refrigerator, Washer, Dryer, Disposal, Humidifier
Other Interior Features
Dry Bar, Walk-In Closet(s), Special Millwork
Sewer
Public Sewer
Other Exterior Features
Roof Deck
Elementary School
Alcott Elementary School
Middle School
Alcott Elementary School
High School
Lincoln Park High School
School District
299
Sales Price
$995,000
Real Estate Tax
$13,615/yr
HOA
$265/mo

Downloads

863 W Wrightwood Avenue Unit: 3

Schedule a Tour

We would love to help you see this beautiful home! As a full-service brokerage, we can help you tour. Please submit an offer, and answer questions about the buying process.

Thank you

for your interest in 863 W Wrightwood Avenue Unit: 3, Chicago, IL 60614

863 W Wrightwood Avenue Unit: 3
Navigate
Lincoln Park

Explore Lincoln Park

Chicago’s “City in a Garden”. Quiet, tree-lined streets give way to bustling business corridors.

read more

Mortgage Calculator

Estimate your monthly mortgage payment, including the principal and interest, property taxes, and HOA. Adjust the values to generate a more accurate rate.
$0,000 Your Payment 20 15 65
$0,000 Your Payment

I'm Interested In

863 W Wrightwood Avenue Unit: 3

 

Find Your Dream Home

Browse active listings in the area or contact us for off-market listings.

Home Search

Looking to Sell Your Home?

Have an expert help you find out what your home is really worth.

Home Valuation