Search

Leave a Message

Thank you for your message. We will be in touch with you shortly.

Explore Our Properties

Property Description

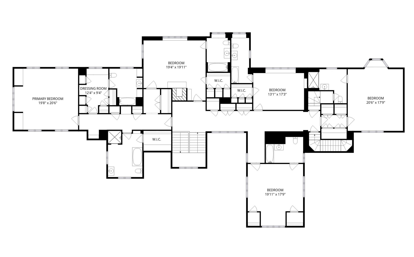
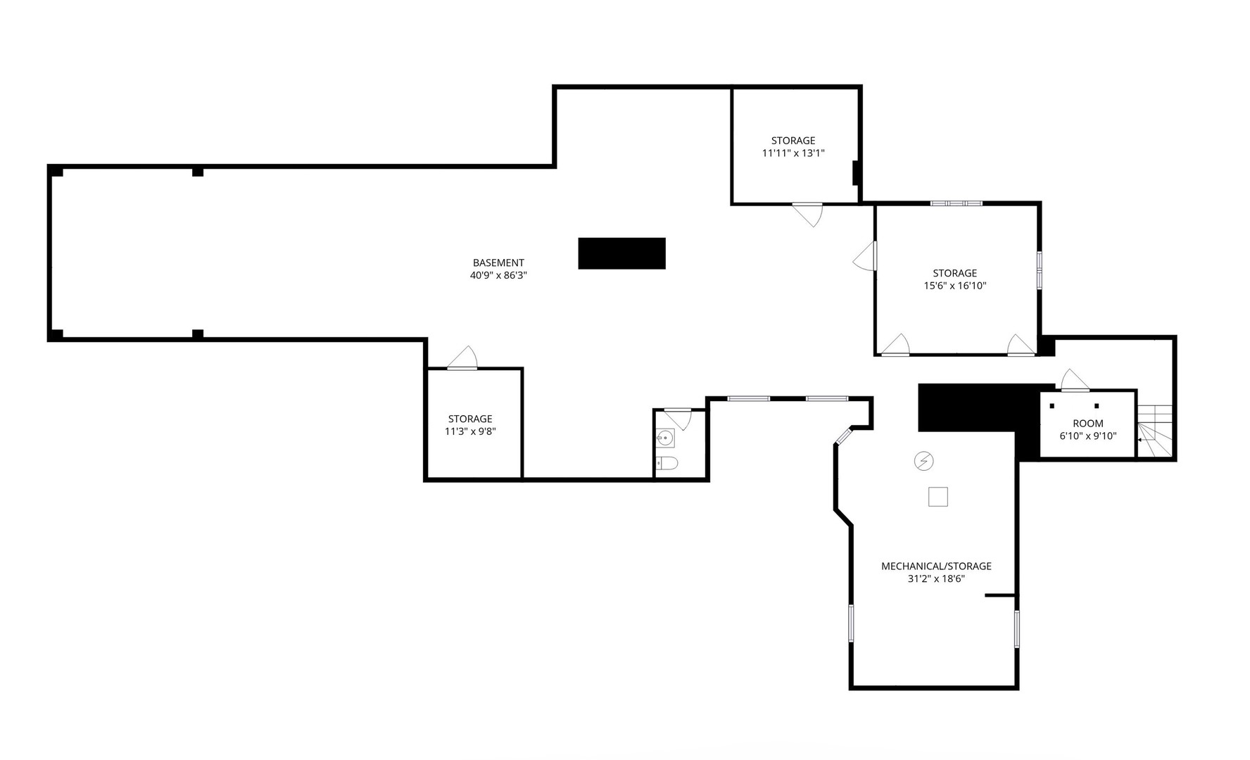
On the market for the first time in nearly 50 years, the historic Phelps Kelley House is one of Lake Bluff's most significant estate properties. Designed in 1927 by noted Chicago architect Ambrose Cramer, a protege of David Adler, this Tudor Revival masterpiece was originally part of the historic "Stonebridge" estate. The 9.35-acre property is elegantly situated at the end of a long, private, tree-lined drive, and features a pond, rolling lawn, mature trees, gardens, a 7,383-square-foot main residence with meticulously preserved interiors, and a detached 5-car garage with a full coach house apartment above. Across five decades, one family has carefully stewarded the character of this home, preserving its original grandeur through its stone floors, carved millwork, wood paneling, intricate moldings, tall casement windows, and generous ceiling heights. Cramer carefully planned the floorplan for gracious living and entertaining. A grand entry leads to expansive formal living and dining rooms-each with fireplaces and French doors opening to an expansive terrace overlooking verdant gardens and the pool beyond. A paneled sunroom offers a quiet retreat with views of the grounds and lends itself perfectly to a sun-filled private office. Service areas are thoughtfully configured for ease: a large butler's pantry with extensive vintage cabinetry connects the dining room to the kitchen, which adjoins a sunlit breakfast room oriented toward the pool. A spacious family room provides yet another vantage point to appreciate the property's natural beauty. Additional first-floor conveniences include a large laundry room, back staircase, and discreet storage integrated throughout. Five bedrooms and six full baths complete the second floor, including a primary suite that functions as its own private wing with dual baths, multiple closets, and a dressing room rich with period character. Two additional bedrooms and 1.1 baths on the first floor offer ideal space for guests or multi-generational living. The lower level includes a powder bath and abundant storage space, but could also be converted into a future recreation room. The property's park-like grounds elevate the estate into a true retreat that feels worlds away. Outdoor amenities include a swimming pool, greenhouse, and a prior tennis court site that provides exceptional potential for a new court or custom outdoor recreation. Meandering paths encourage exploration, while open lawns and a broad terrace facilitate gatherings of any scale. Adding to the estate's pastoral charm, the current owners maintain beehives on the property for small-batch honey production. The greenhouse, beehives, and expanses of lawn and garden reinforce the feeling of escape that a private country estate provides while being only minutes from Lake Bluff's beloved community fabric: downtown's charming shops and dining, the Metra station, Sunrise Beach, highly rated schools, outstanding parks, and the town's renowned Fourth of July celebration. A once-in-a-generation offering, the Phelps Kelley House represents the finest expression of North Shore heritage. It is an estate in the truest sense, meticulously preserved and ready to begin its next chapter.

Overview

Property Status
For Sale
Lot Size
9.36 Acres
MLS ID
12527076
Property Type
Residential
Year Built
1927

Features & Amenities

Neighborhood
Lake Bluff
Garage Spaces
5.0
Water Source
Lake Michigan
Roof
Slate
Lot Features
Landscaped, Mature Trees
Parking
Asphalt, Circular Driveway, Yes, Garage Owned, Detached, Garage
Heat Type
Radiator(s)
Air Conditioning
Small Duct High Velocity
Laundry Room
Main Level
Fireplace
Gas Log, Gas Starter
Appliances
Double Oven, Microwave, Dishwasher, Refrigerator, Washer, Dryer, Trash Compactor, Gas Cooktop
Other Interior Features
1st Floor Bedroom, 1st Floor Full Bath, Built-in Features, Walk-In Closet(s), High Ceilings, Historic/Period Mlwk, Beamed Ceilings, Paneling
Sewer
Septic Tank
Other Exterior Features
Fire Pit
Elementary School
Lake Bluff Elementary School
Middle School
Lake Bluff Middle School
High School
Lake Forest High School
School District
115
Sales Price
$6,250,000
Real Estate Tax
$54,383/yr

Downloads

1650 Green Bay Road

Schedule a Tour

We would love to help you see this beautiful home! As a full-service brokerage, we can help you tour. Please submit an offer, and answer questions about the buying process.

Thank you

for your interest in 1650 Green Bay Road, Lake Bluff, IL 60044

1650 Green Bay Road
Navigate
Lake Bluff

Explore Lake Bluff

Lake Bluff provides residents with a self-contained lifestyle.

read more

Mortgage Calculator

Estimate your monthly mortgage payment, including the principal and interest, property taxes, and HOA. Adjust the values to generate a more accurate rate.
$0,000 Your Payment 20 15 65
$0,000 Your Payment

I'm Interested In

1650 Green Bay Road

 

Find Your Dream Home

Browse active listings in the area or contact us for off-market listings.

Home Search

Looking to Sell Your Home?

Have an expert help you find out what your home is really worth.

Home Valuation